海、空、風、太陽、月、星をひとりじめする空。滋味深い白老の食材の数々。何もしなくて良いという贅沢。海が目の前の露天風呂、癒しの専用ナノミストルーム、寛ぎのインナーテラス付き、「身体の中から美しく健康に」をテーマにしたスイートルーム。インナーテラスのガラスを全開にすると、まるでリゾートの海岸にいるかのように波音に包まれゆっくりお過ごしいただけます。
POINT
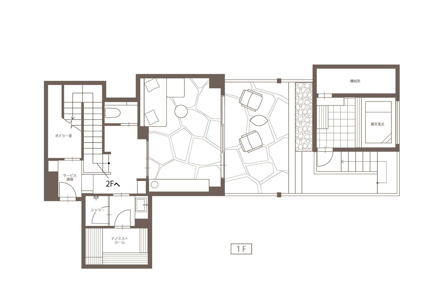
本客室はメゾネットタイプとなっており、1階、2階それぞれのフロアから太平洋を一望することができます。
心のリゾート 海の別邸 ふる川 北海道白老郡白老町虎杖浜289-3 TEL:0144-87-6111
太平洋と一体化したような感じがする露天風呂での入浴は、シーサイドならではの格別な贅沢。美人の湯とも言われる温泉に浸かると、お肌つるつる、心ほんわかです。
大地をイメージした素材や色使いを施し、どこか懐かしくそれでいて自然のパワーを享受するよう、日々の雑踏から少し離れ、ゆっくりくつろげる場所。
食材の宝庫「白老」。地場素材の持味を存分に引き出した創作和食会席とリゾートビュッフェスタイルの朝食をお楽しみください。
人々の営みが太古から続く場所”白老”。「心のリゾート」のルーツはこの素晴らしい景観と食の宝庫である”白老”という場所が持つ力にあります。